項目名稱:西安美百年聯合辦公環境與家具搭配項目
項目地址:西安萬象匯
項目面積:15000m2
項目進度:已完工
設計師團隊:巨米家具設計
-------------------------------------------------
前臺接待處

美百年打造品牌連鎖共享服務辦公空間,主要為中小型或成長型企業提供一站式“辦公+增值”服務,建立基于人力、資源、商業信息共享的移動智能互聯社區。
小會議室


公共辦公區

西安美百年聯合辦公項目的設計思路一如既往貫徹著【巨米家具】“堅持設計健康環保的辦公家具產品,為社會創造美好、健康的辦公環境,專注辦公家具使用者的體驗,讓企業員工即使上班也能舒適享受,發揮辦公家具最大的用途”的工作理念。

公共辦公區無需過多裝飾,自然恬靜隨和親切的環境更能讓員工專心工作

財務辦公區

辦公休閑區

工作之余不缺休閑之所,作品與空間融為一體,互相映襯、互相輝映。

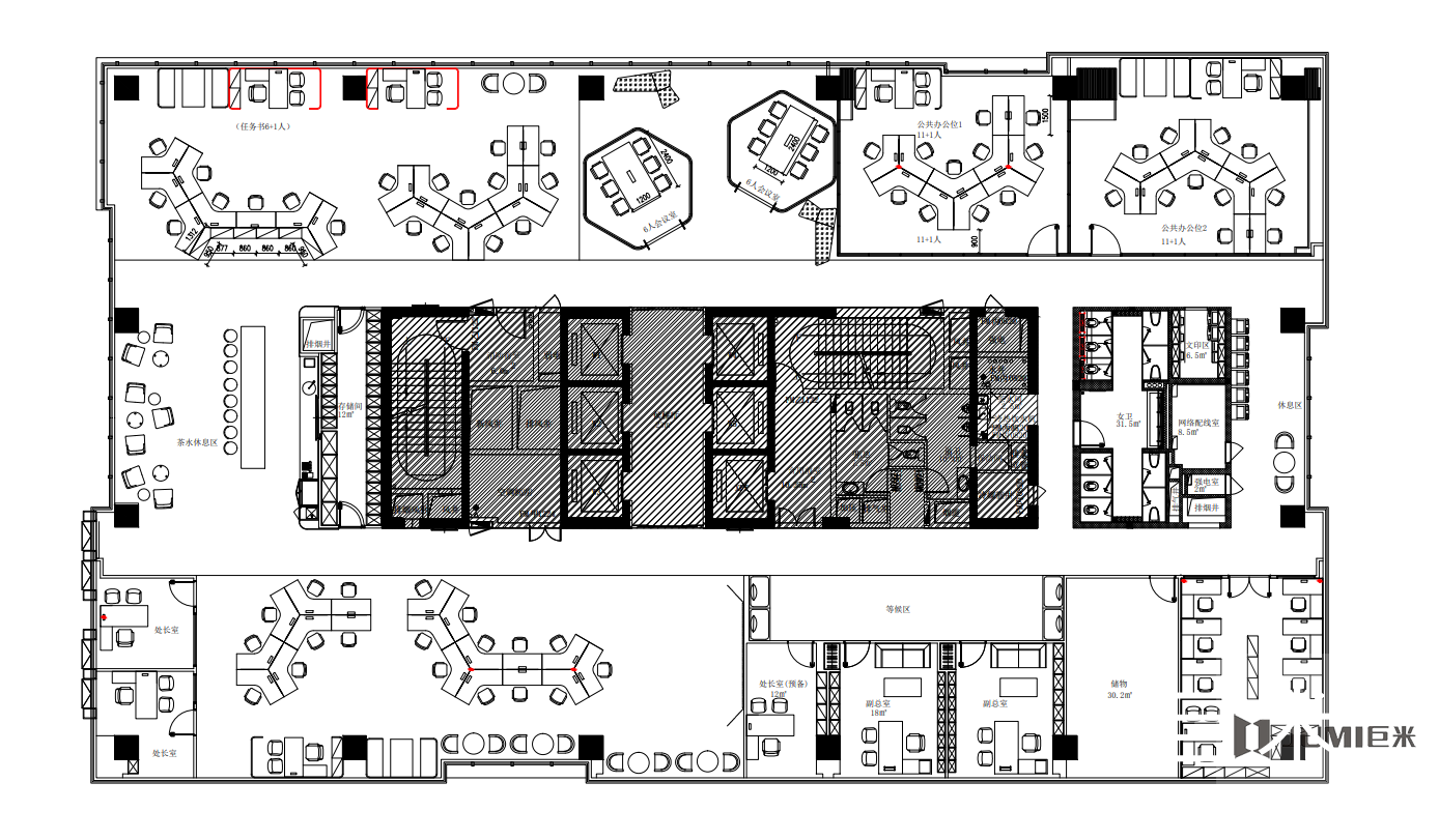
西安美百年聯合辦公設計圖


美百年打造品牌連鎖共享服務辦公空間,主要為中小型或成長型企業提供一站式“辦公+增值”服務,建立基于人力、資源、商業信息共享的移動智能互聯社區。
小會議室


公共辦公區

西安美百年聯合辦公項目的設計思路一如既往貫徹著【巨米家具】“堅持設計健康環保的辦公家具產品,為社會創造美好、健康的辦公環境,專注辦公家具使用者的體驗,讓企業員工即使上班也能舒適享受,發揮辦公家具最大的用途”的工作理念。

公共辦公區無需過多裝飾,自然恬靜隨和親切的環境更能讓員工專心工作
財務辦公區
辦公休閑區

工作之余不缺休閑之所,作品與空間融為一體,互相映襯、互相輝映。

西安美百年聯合辦公設計圖

深圳市巨米辦公家具是一家集辦公家具研發、制造、銷售于一體的專業化綜合性現代化的辦公家具廠家,提供定制化辦公家具采購配套方案,辦公家具產品有:大班臺辦公桌椅、辦公屏風卡位、辦公屏風隔斷、辦公文件柜、會議培訓桌椅、辦公沙發等一切辦公家具應有盡有,保證滿足客戶定制的需求,一站式服務到家,包客戶滿意。深圳辦公家具工程定制,免費服務熱線:400-900-5880。



客服1